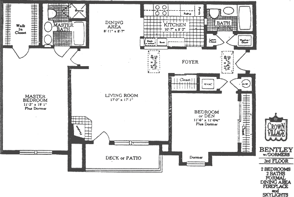
Crown Village Floor Plan